Двухступенчатый червячный редуктор Ч2-160

Как правило, редуктор червячный двухступенчатый ч2-160 выбирается в случае, когда возникает необходимость получить передаточное число с показателем выше 63. Эффективный выбор оборудования базируется на условиях его эксплуатации и величине нагрузок. Как и все червячные механизмы, редуктор Ч2-160 разработан в целях изменения крутящего момента в условиях частоты вращения входного вала не более 1500об/минуту. Эффективность применения подтверждена в умеренных, тропических, а также в умеренно-холодных зонах. Кроме того, червячные редукторы данного класса могут использоваться в помещениях без системы регулярного отопления, в том числе под навесом. Рабочий температурный диапазон зависит от правильности выбора масла и может составлять -45С – +40°С, предельные показатели находятся в прямой зависимости от конкретного климатического исполнения.
Цена: от 31 400 руб.
УСЛОВИЯ ПРИМЕНЕНИЯ РЕДУКТОРОВ:
- нагрузка постоянная и переменная, одного направления и реверсивная;
- работа с периодическими остановками и длительная до 24 часов в сутки;
- вращение валов в любую сторону;
- частота вращения входного вала не более 1500 об/мин;
- атмосфера типа I и II по ГОСТ 15150-69 при запыленности воздуха не более 10 мг/м3;
- климатические исполнения У,Т для категорий размещения 1-3 и климатическое исполнения УХЛ и О для категорий размещения 4 по ГОСТ 15150-69.
Общее описание:

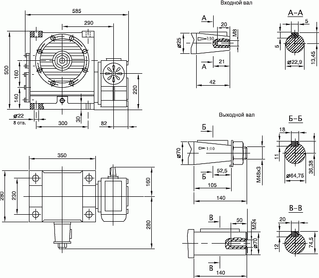
РИС 1. Габаритные и присоединительные размеры

РИС 2. Схема сборки редукторов

РИС 3. Варианты сборки червячных пар
Технические характеристики
| Параметр | Передаточное число общее | ||||||||||
|---|---|---|---|---|---|---|---|---|---|---|---|
| 100 | 125 | 160 | 200 | 250 | 400 | 630 | 1000 | 1600 | 2500 | 4000 | |
| Номинальный крутящий момент на выходном валу, Н.м при ПВ>63% | 2500 | 3150 | 3150 | 3550 | 3550 | 3550 | 4000 | 4000 | 4000 | 3550 | 2800 |
| при ПВ<63% | 3100 | 3800 | 3150 | 3550 | 3700 | 4500 | 4400 | 5000 | 5300 | 5450 | 4000 |
| при ПВ=40% | 3500 | 4200 | 3150 | 3550 | 4100 | 4600 | 4600 | 5150 | 5300 | 5450 | 4000 |
| при ПВ=25% | 3700 | 4500 | 3150 | 3550 | 4600 | 4600 | 4600 | 5150 | 5300 | 5450 | 4000 |
| при ПВ=16% | 3995 | 5000 | 3150 | 3550 | 5150 | 4600 | 4800 | 5150 | 5300 | 5450 | 4000 |
| КПД, % при ПВ>63% | 77 | 74 | 73 | 68 | 65 | 60 | 55 | 50 | 35 | 30 | 22 |
| Термическая мощность, кВт при ПВ>63% | 3,15 | 3,15 | 3,15 | 3,47 | 2,90 | 2,90 | 2,05 | 1,24 | 1,09 | 0,92 | 0,92 |
Примечание: Значения крутящих моментов и КПД приведены при температуре окружающей среды +20оС и при использовании легированных масел. В случае применения нелегированных масел эти значения необходимо снизить на 14%.
Масса редуктора: 186,5 килограмм.
Пример условного обозначения при заказе
Редуктор Ч2-160-250-12-21-У2, что означает: редуктор червячный двухступенчатый типа Ч2 с межосевым расстоянием 160 мм, номинальным передаточным числом 250, вариантом сборки 12, вариантом расположения червячной пары 21, климатическим исполнением У и категорией размещения 2.